| Подвод воды к задней стенке бачка или сверху бачка осуществляется с помощью монтажных отверстий | G1/2 " |
| Рабочий диапазон давления воды | 0,05 – 0,8 MPa |
| Рекомендуемый диапазон давления воды | 0,3 – 0,5 MPa |
| Большой смыв | 6 – 9 l |
| Малый смыв | 2,5 – 3,5 l |
| Стандартные настройки большого смыва | 6 l |
| Стандартные настройки малого смыва | 3 l |
| Гигиенический резерв | 3 l |
| Объем воды в бачке | 9 l |
Бачок для замуровывания в стену
A112 Basicmodul
Информация о продукте
- Для ограждающих конструкций внутри и вокруг – «мокрый» монтаж
- Предназначен для отдельно стоящих напольных унитазов или унитазов, закрепленных в полу
- Конструкция полистирольной изоляции упрощает процесс замуровывания в стену, предотвращает процесс конденсации на поверхности бачка и ослабляет вибрацию в строительной конструкции
- Двойной смыв, независимо регулируемый, с гигиеническим резервом
- Подходит для установки пневматического или сенсорного смыва
- Совместима со всеми кнопками управления Alca
- Бачок сделан из одного фрагмента полипропилена, что обеспечивает его 100% герметичность
- Подвод воды сзади/сверху посередине
- Возможность сервиса без использования инструментов
- Крышка сервисного отверстия упрощает процесс монтажа и защищает от влаги и грязи
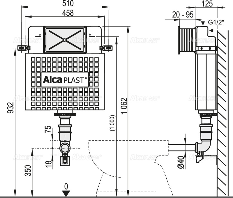
- Монтажная высота 1062 мм
- Монтажная глубина рукава регулируется в диапазоне 20–95 мм
- Монтажная глубина 125 мм
- EN 14124, EN 14055
| Количество (упаковка) | 1 шт |
| Количество (поддон) | 20 шт |
| Размеры (шт.) | 1050×480×140 MM |
| Размеры (упаковка) | 1050×140×480 MM |
| Вес (шт.) | 4,5581 кг |
| Вес (упаковка) | 4,5581 кг |
| Вес (поддон) | 111,162 кг |
- Бачок с впускным и выпускным механизмом
- Резьбовое соединение 1/2" для подвода воды со встроенным угловым вентилем Schell 1/2"–3/8"
- Монтажный комплект: винт Ø5×40 – 5 шт., дюбель Ø8 – 5 шт.
- Соединительный комплект Ø40 для подключения воды к унитазу
- Монтажный комплект крышек для защиты технических отверстий при установке системы
- Рукав сервисного отверстия легко укорачивается, в комплекте 4 шурупа для его крепежа
- Телескопические крепежные кронштейны 2 шт.
| M0005-ND | Water supply ring A100 |
| M0017C-ND | Inlet fill valve bracket |
| M0039-ND | Sleeve for WC systems |
| M0043B-ND | Inner board for WC systems |
| M0080-ND | Sleeve cover for WC systems |
| M0243-ND | Nut for angle valve bracket |
| M0506-ND | WC cistern hinge support |
| M0507-ND | WC cistern hinges |
| M0603-ND | Cuff |
| M0604-ND | Inlet sealing |
| M0612-ND | Perforated tape straight 17/6.5 |
| M0613-ND | Holder |
| M0615-ND | Holder lock |
| M905-ND | Complete mechanism |
| MN0091-ND | Frame sleeve for WC systems |
| MN0092-ND | Frame for WC system sleeve |
| MN0115-ND | Pipe with O-ring for WC systems |
| MN1238-ND | Колено впускное AM112 |
| P165-ND | Angle valve with bracket and nut |
| P211-ND | Shut valve Schell replacement kit |
| S0032-ND | Screw into metal 4.2×16 DIN 7983 A2 |
| S0956-ND | Rosette DN40 |
| Z0007-ND | Wrapping seal DN60/40 |
| Код | EAN | Технический лист |
|---|