Промышленный трап с коробчатыми сливными отверстиями 250×250-135, нержавеющая сталь AISI 304

APR6-2211-135

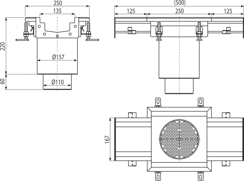
Высота водяного столба мокрого гидрозатвора50 mm
  • Для водоотведения крупных промышленных объектов, а также других коммерческих объектов внутри зданий, например, в химической и пищевой промышленности
  • Для водоотведения большого количества воды, подходит и для большого расстояния
  • Трап ​из нержавеющей стали, обработанной методами травления и пассивации, что гарантирует сохранение свойств нержавеющей стали и ее функциональность на протяжении многих лет
  • Вся система прочно закреплена в бетоне с помощью регулируемых ножек и боковых анкеров
  • Высокая скорость водоотвода
  • Регулируемая высота в диапазоне 85-125 мм
  • Используемая прокладка обеспечивает полностью водонепроницаемое соединение
  • Материал трапа: нержавеющая сталь 1,5 мм, DIN 1.4301
  • EN 1253-1
Количество (упаковка) 1 шт
Количество (поддон) - шт
Размеры (шт.) 500×280×250 MM
Вес (шт.) 5,5455 кг
Вес (упаковка) 5,5455 кг
Вес (поддон) - кг
  • Слив
  • Уплотнение 1 шт.
  • Регулируемые ножки 4 шт.
  • Корзина для сбора мусора
  • Гидрозатвор
  • Монтажный комплект
КодEANТехнический лист
APR6-2211-1358595580573508Technický list